家访|《音响技术》蒲东实地探访乐清Procella 11.6.8系统,试尽Trinnov Audio WF顶班家庭影院

发布时间:2025/09/08分享至:

江山代有人才出。中国国内的家庭影院市场已发展得极为成熟,不少发烧友的器材、见识与热情更已达世界级。早前笔者到上海浦东公干,更受米乐影音董事总经理 Tony 的邀请,拜访了乐清市两位超级家庭影院烧友:陈大先生的Procella 11.6.8声道Trinnov Audio WaveForming(以下简称 WF)超级家庭影院与郑先生的Miller & Kreisel影院。

 

陈大先生的超级影院花了四年时间打造,并由Trinnov、Procella以及 Artnovion三大品牌负责人亲身合力设计,是中国首间民用WF超级家庭影院。由上海到乐清市要六个小时的车程,但笔者觉得绝对值得,WF+六只Procella旗舰低音炮V21,又是另一个境界……

 

 

 
 

从耳机到百万级家庭影院

 

一大清早,Tony就由上海驾车出发,不计中途午饭,车程也要六个多小时,到了乐清市天色已晚,笔者其实已相当疲惫,但走到了陈大先生的家庭影院,精神即时为之一振!“哗哗哗哗”我还记得我的连番惊叹!

 

作为酒店业巨子的陈大先生,家住乐清一幢超豪华别墅。他的发烧之路,是从一对耳机开始,逐渐扩展到Hi-Fi组合,最终成为了家庭影院超级发烧友。4年前他趁着别墅装修,决心打造一个不计预算上限的终极家庭影院。

 

“在认识米乐Tony前,我走了很多冤枉路啊!”陈大先生苦笑着说。他4年前购入的新别墅开始装修,决心打造家庭影院时,就走访了不少国内的家庭影院代理商及音响展。“其实我一开始只打算购买一套简单的影院音响系统,安装在客厅使用,但蒲东你自己也是发烧友,就会了解到越看得多音响展,中毒就会起深,哈哈。”

 

三师会审 打造零瑕影院

 

在一次展会上,陈大先生遇见了Tony。米乐影音展示的影院效果深深吸引了他。从顶班的Trinnov Altitude 32多声道处理器到Procella专业扬声器,再到巨兽级别Barco投影机,陈大先生看得口水流满一地。

 

“其实我在认识Tony前,家里用来做影院的地窖已经开始动工建造一年多,当时房间的长宽高比例都已经精心设计过并已在打造中。但由于器材设备的更换,在多声道系统的布局上,就由Tony找来Procella扬声器的创始人Anders Uggelberg、专业声学物料Artnovion始创人Jorge Castro 进行了重新设计,在工程完成后,又请来 Trinnov的技术专家Tom Garrett亲临陈宅作最后调校,实行‘三师会审’,打造零瑕疵超级影院。”

 

 

在这个影院的设计过程中,米乐影音也在自家的影院陈列室中升级了顶班的怪兽级Barco XDL-4K30投影机,陈大先生一看其素质,就立刻买了一台引进他的家庭影院。然而,这部庞然大物的安装也为整个影院房间的设计增加了难度,大家看图(图1~3)Barco XDL-4K30 本身已十分巨大,但独立一部、用来冷却的水冷机比投影机本身更大,加上它运作时所发出的噪音,所以必须把它装放在影音房的外边。

 

米乐影音为了帮陈大先生实现梦想,专程邀请了Procella创始人Anders Uggelberg来完成影院音箱的选型与布置,声学方面则由葡萄牙Artnovion公司做了整体规划,以上两张均为示意图

 

11.6.8 声道,全国首个WF技术影院

 

陈大先生的器材全用顶班,若不能把它们的功能全数发挥出来,就十分“可惜”。正如前文所说,Tony为了实现陈大先生的梦想,就请来“三师”会审。陈大先生的影院更是全国首个采用WaveForming技术的影院,工程完成后,便特别请来Trinnov的技术专家Tom Garrett亲临陈宅作最后调校(图4)。

 

 

陈大先生的影院,光是声学处理、扬声器设备以及功放线材和装修等部分,就达到了百万的级别,加上投影机,是近五百万级别打造的顶级影院,让笔者逐一介绍。

 

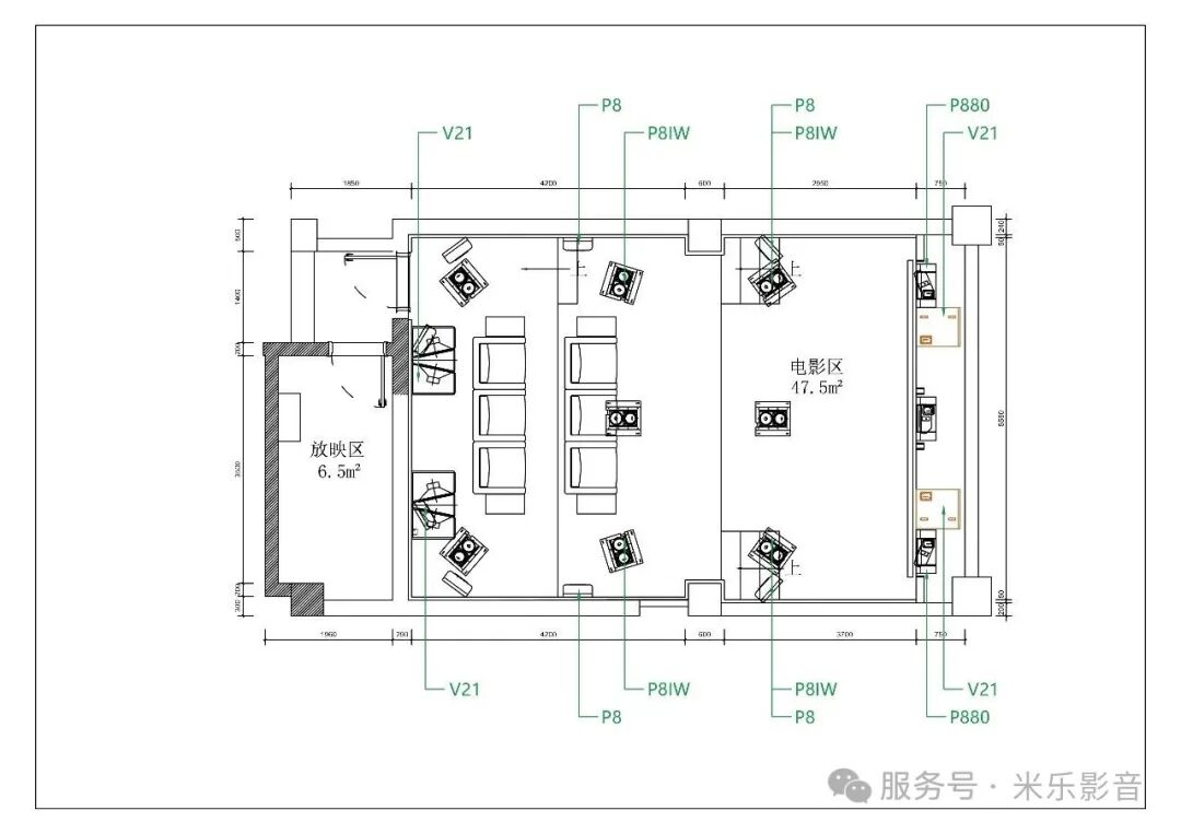
影音主声道使用了Procella旗舰型号P880,这款扬声器在大型影院系统中能够呈现出极其澎湃的声音穿透力和细节效果,其震撼的声音爆发力也是传统 Hi-Fi 音箱无法比拟的。

 

 

环绕声部分使用了6只Procella P8 THX PM3音箱、天空声道则安装了8只Procella P8iCW喇叭——而这8只天空声道的阵列方式,也非传统Dolby Atmos建议的2行4只的平衡排列,而是采用了3-3-2的方式;前方顶部安装了3个,座位正上方安装了3个,座位后方安装了2个。

 

 

此外,前方和后方的2排中,靠边的两个P8iCW还调整了45度角,以确保高音单元能够有效地辐射到座位区域,这样做的好处在于显著增强了扬声器的性能。

 

 

最后还有一个特别的设计,是在前方主声道和座位之间的位置,安装了2个P28喇叭作为Front Wide声道,在Dolby Atmos系统中,这种配置旨在通过Trinnov的运算,使得声音更具冲击力和立体感,以及加强前置声道与后方环绕声道之间的衔接,使得整体音效更加连贯。

 

 

与 WF 技术的“搏斗”

 

超低音的部分,由于使用了Trinnov的WF技术,采用了前4后2的配置方案,前方的屏幕后方,在3个P880之间,安装了4个V21超低音,而在座位后方,则安装了2个V21超低音,有关于WF与超低音的安装,又是一个故事。首先再次说说WF技术:以最最简单来说,就是经Trinnov多声道处理器计算后,利用前(低音炮)放(低频声波),后(低音炮)吸(利用反相声波)的一种技术,目的是为了优化低频声波的传播,大大减低了低频驻波及谐振带来的干扰。

 

说回陈大先生的房间,若要玩WF,最理想的配置方案是4+4,也就是前置4个超低音和后置4个超低音。然而,由于房间在设计之初没有考虑到WF功能,房间搭建了两级的台阶,所以影院后方的高度要比前方屏幕那边要矮得多,没有足够空间摆放4只Procella V21低音炮,最终只能使用4+2的方案:也就是前置4个超低音和后置2个超低音;另外由于房间最初设计了两排座位,后排座位距离后墙约只有1米的距离,在后墙上安装了新的V21超低音音箱后,就与后排座位距离过于接近(WF技术规定后方低音炮要距离聆听位置至少1米)。

 

 

在Tom Garrett作WF测量计时,只能在房间中部的座位进行测量和调校。经过WaveForming的测量和运算,最佳的听音位置以及低频处理后的最佳效果就只能在第一排座位上实现。当然,第二排位置的声音亦绝对是高水准(笔者试听过)只是WF技术的要求极高,希望每个座位的频响差距在正负2dB以内。

 

使用了WF的前后比较图,大家可以看到在使用WF技术后,低频变动干净许多了。

 

声学处理“软硬”兼施

 

有看开拙文的读者,都知道我多次强调Trinnov Altitude声学处理软件的强大能力,绝对空前兼(暂时)绝后。但陈大先生力臻完美,找了“三师”重新设计房间的声学架构,更使用了葡萄牙专业声学物料品牌Artnovion的产品;而这些声学材料,主要装设于屏幕左右两边的墙壁,也即主声道的第一反射区域,而在左右墙壁的位置,也安装了经过艺术设计的特殊吸音和扩散体,就连房间的顶部也安装了吸音物料,在“软硬兼施”下,令整个影院的声学环境达至最佳效果。

 

这两张是葡萄牙专业声学物料公司Artnovion为陈大先生设计的物料分布图。

 

怪兽级投影机

 

环绕声力尽完美的陈大先生,在画质上当然也要最好的;他使用了Barco顶级的专业用XDL-4K30投影机,峰值亮度达到了30000流明,并内置三片1.38英寸的4K30 DLP投影芯片(需知道顶班的民用投影机大部分都是使用0.69单片式DLP芯片),以及6色激光光源,不仅有传统的红绿蓝,还加入了青紫黄,这样更可以令画面颜色的纯度、亮度比使用三色激光要饱满得多,而且更有层次感。而配合这部巨兽投影机的,是Visione ATFS-210-169-M235 THX认证编织透声变形幕。而视频信号在播放机输出之后,还进入到Envy Extreme这个视频处理器中,经过优化处理之后再输入到投影机中进行播放。

 

 

观赏感觉

 

为测试WF的威力,笔者把同一片段分别以有使用与关掉WF功能作AB比较。不用我说,大家都知道结果了——使用了WF的低频要比没有使用的要干净得多,而且在冲击力和持续输出能量的同时,细节也更加丰富。以耳收货的话,笔者根本感觉不到有驻波和多余的低频能量干扰,尽管低频无情地猛烈轰炸在笔者身上,但却完全感觉不到房间有任何驻波及暗振,音场干净得可怕。大家都知道笔者是个低音狂,耳朵还有点背(一笑),在陈大的五百万影院观赏电影时,声压平均都超过110dB,但看了两个多小时,却完全没有疲累的感觉,更调高了几次声压,这就是最高质素的环绕声音能带来的效果。

 

 

至于画面方面,颜色饱满结实之余,那种立体感更是我有史以来家访见过的投影画面中最好的。高光深暗层次分明,直到那时,我才明白到我一直没有看过HDR真正的威力,陈大先生的Barco投影机加上Envy Extreme的组合,再次开了我的眼界,颠覆了我对投影机极限质素的思维,我想说,陈大先生家庭影院的画质,比很多最高质的LED大屏幕还要好。

 

 

 
 
 

器材

 

Procella 11.6.8 声道家庭影院

主音箱:Procella P880×3

天空音箱:Procella P8iCW×8

环绕音箱:Procella P8 THX PM3认证×6

超低音:Procella V21×6

增宽音箱:Procella P28×2

后级放大器:Procella DA08-DSP×13

前级解码器:Trinnov Altitude32-1632银色特别款

视频处理器:Envy Extreme

高清播放器:Zappiti Signature

刻录储存器:Zappiti NAS

电动变形遮声幕:Visione ATS-210-169-M235 THX 认证编织透声幕

HDMI 线:PIXELGEN THX-HFC76/2 THX 出品认证纪念版×2

声学材料:Artnovion Bow L/Bow S/Galan/Galan Dimi 大师签名款

 

 

下期待续:郑先生的Miller & Kreisel及Trinnov组成的顶级WF影院

 

※    本文源自香港《音响技术》2025年8月号.

※    如欲了解更多信息,您可以在脸书上关注“米乐影音 Miro Sound & Vision”,或者访问米乐数码影音官网(www.mirosoundvision.com)及致电(021)36522009/36522010。